
550 El Pintado, Danville CA 94526 | $1,595,000
Status: ActiveListing provided courtesy of Taso Tsakos of Engel & Volkers Danville. Last updated 2026-03-01 09:20:27.000000. Listing information © 2025 SANDICOR.
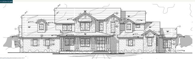
Build your custom estate in one of Danville’s most coveted settings. Located on prestigious El Pintado Loop, this rare ±¾+ acre parcel offers a private approach via a secluded drive and a beautifully positioned, nearly level homesite ideal for luxury living. Included in the sale are thoughtfully designed plans by renowned architect Steven Kubitschek for an approximately 5,500 square foot custom residence plus a detached ADU, creating an exceptional opportunity to streamline the building process while delivering architectural distinction. Surrounded by mature landscape and set for privacy, the lot provides a serene backdrop with ample space for outdoor living, resort-style amenities, and expansive entertaining areas. A unique offering combining premier location, privacy, and ready-to-build design in one of Danville’s most desirable enclaves.
More Details
0.81 Acres

Holly & Heather Manion
Call: 858.756.3007
Thank you!


























