
1040 Glendon, Los Angeles CA 90024 | $5,995
Status: ActiveListing provided courtesy of Mans Eckerlund of Douglas Emmett Management, Inc. Last updated 2025-12-28 09:18:49.000000. Listing information © 2025 SANDICOR.
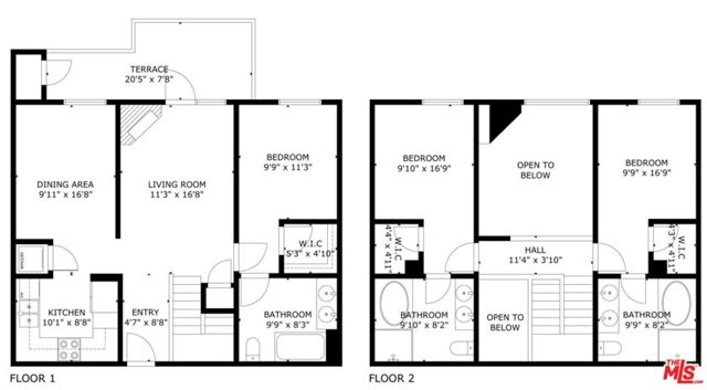
Unit 4190 is a spacious 3BR / 3 BA townhouse-style apartment in the heart of Westwood Village near UCLA. This 2-story unit offers high ceilings, a gourmet kitchen, washer/dryer in unit, large private balcony, formal dining room, fireplace and large architectural windows for maximum light. At The Glendon, residents enjoy resort-style amenities, including an infinity pool, a state-of-the-art fitness center, and spa facilities with steam rooms, saunas, and whirlpool baths. Relax in beautifully landscaped courtyards with Spanish-themed fountains or socialize in inviting common areas. Pets are welcome too! Conveniently located near UCLA, Trader Joe's, Target, Starbucks, and top dining spots, The Glendon offers unmatched luxury and convenience. *Photos displayed may be of similar but not exact units*
More Details
4.24 Acres
4 Stories

Holly & Heather Manion
Call: 858.756.3007
Thank you!







































